0

Dépendances à rénover - 74m²

La Regrippière (44330)
Réf : PC4693

Filumena vous propose sur la commune de la Regripière, situé dans un environnement calme et agréable, découvrez cette dépendance en pierres offrant actuellement 37m² au sol avec possibilité d'extension et d'un étage permattant une superficie totale de 63.90m².

Un permis de construire déjà accordé permet la réalisation de ce projet idéal pour un premier achat ou un projet locatif.

Ce permis reste toutefois non obligatoire, l’acquéreur étant libre de conserver ou de modifier le projet selon ses besoins.

Vous bénéficierez également d’un terrain privatif de 345m².

Un bien rare sur le secteur, parfait pour les porteurs de projet en quête de potentiel et de tranquillité. À découvrir sans tarder !

Votre contact Chauveau Paoline 07.50.14.94.55.

Les informations sur les risques auxquels ce bien est exposé sont disponibles sur le site Géorisques : www.georisques.gouv.fr

Prix du bien 49 500 €
Pièce(s) 3
Chambre(s) 2

Caractéristiques du bien

Caractéristiques Valeurs
Code postal 44330
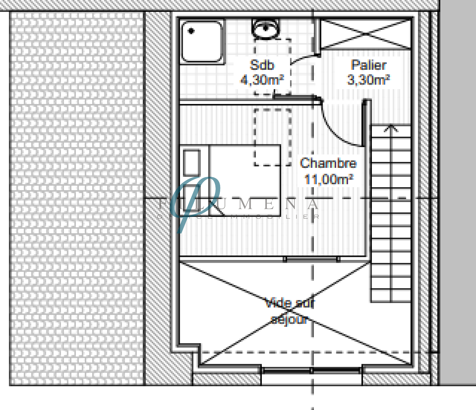
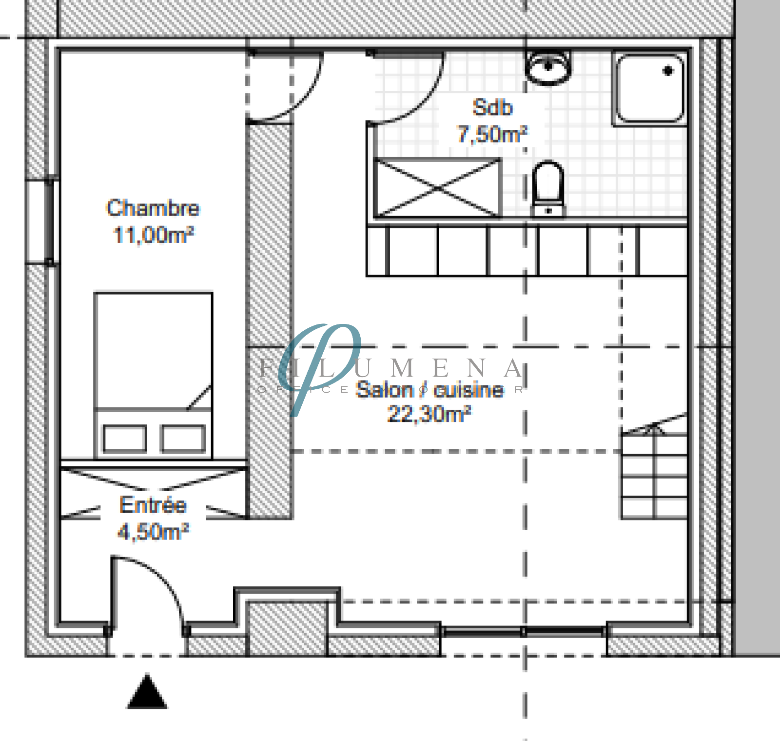
Surface habitable (m²) 74 m²
surface terrain 345 m²
Nombre de chambre(s) 2
Nombre de pièces 3
Nombre de niveaux 1
Nb de salle d'eau 1
Murs mitoyens 2
Année de construction 1900

Infos financières

Caractéristiques Valeurs
Prix de vente honoraires TTC inclus 49 500 €
Prix de vente honoraires TTC exclus 45 000 €
Honoraires TTC à la charge acquéreur 10 %

Bilans énergétiques

DPE GES
Ce bien vous intéresse ?
Fieldset par défaut
Fieldset par défaut
Validation

* Champs obligatoires

Contacter l'agence
Validation
Les informations recueillies sur ce formulaire sont enregistrées dans un fichier informatisé par La Boite Immo agissant comme Sous-traitant du traitement pour la gestion de la clientèle/prospects de l'Agence / du Réseau qui reste Responsable du Traitement de vos Données personnelles. La base légale du traitement repose sur l'intérêt légitime de l'Agence / du Réseau. Elles sont conservées jusqu'à demande de suppression et sont destinées à l'Agence / au Réseau. Conformément à la loi « informatique et libertés », vous disposez des droits d’accès, de rectification, d’effacement, d’opposition, de limitation et de portabilité de vos données. Vous pouvez retirer votre consentement à tout moment en contactant directement l’Agence / Le Réseau. Consultez le site https://cnil.fr/fr pour plus d’informations sur vos droits. Si vous estimez, après avoir contacté l'Agence / le Réseau, que vos droits « Informatique et Libertés » ne sont pas respectés, vous pouvez adresser une réclamation à la CNIL. Nous vous informons de l’existence de la liste d'opposition au démarchage téléphonique « Bloctel », sur laquelle vous pouvez vous inscrire ici : https://www.bloctel.gouv.fr Dans le cadre de la protection des Données personnelles, nous vous invitons à ne pas inscrire de Données sensibles dans le champ de saisie libre.
Ce site est protégé par reCAPTCHA, les Politiques de Confidentialité et les Conditions d'Utilisation de Google s'appliquent.